top of page
Vila Joana Hotel

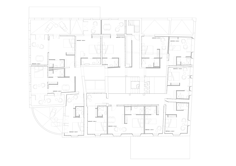
The rehabilitation of Vila Joana to host a little hotel is adressed with the aim of changing only the basic elements to adapt the building to its new use.
With this consideration, two specific actions are planned with the intention of giving this old masia a public caracther: the placement of a porched acces and the creation of spacious hall that communicates vertically the common areas inside the building.











bottom of page